IGLO 5/IGLO ENERGY Balkontür: Modernes Design, innovative Technik und hohe Energieeffizienz - für noch niedrigere Heizkosten!

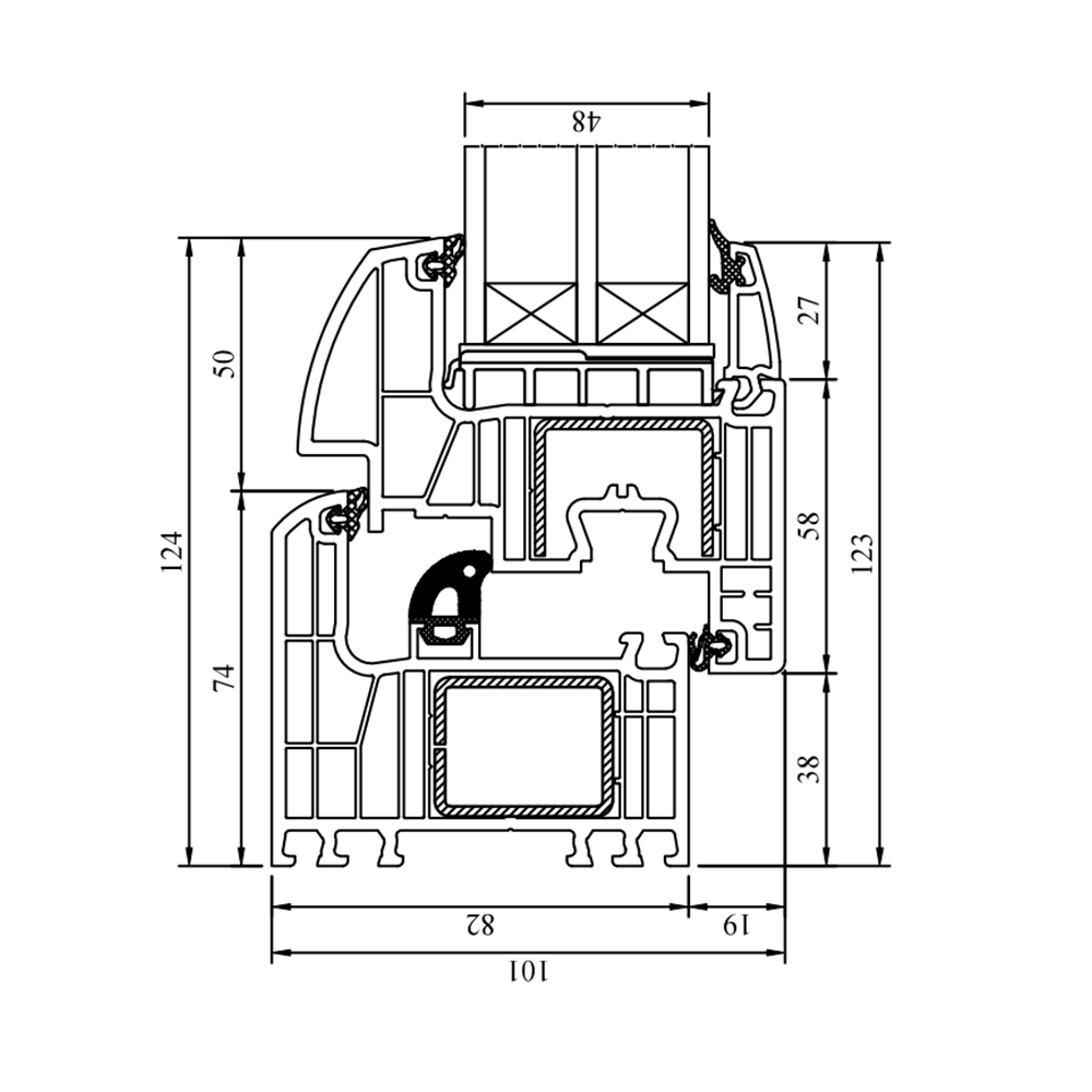
DRUTEX IGLO 5/IGLO Energy - Die Kunststoffbalkontüren gibt es in den beiden Profilen. Sie unterscheiden sich in der Einbautiefe sowie in der Anzahl der Kammern. Das Iglo 5 Profil (Uw = 0,94) hat 5 Kammern und eine Einbautiefe von 70mm. Das Iglo Energy Profil (Uw = 0,79) hat 7 Kammern und hat eine Einbautiefe von 82mm.
Höhe - Der Vorteil gegenüber einem Standardfenster ist, dass wir mit der Balkontür eine Höhe von 2500mm erreichen.
Kunststoff-Balkontüren bieten eine hervorragende Wärmedämmung. Sie
isolieren gut und minimieren den Wärmeverlust, was zu einer verbesserten Energieeffizienz und Kosteneinsparungen führt. Zudem absorbieren sie Schall und reduzieren Außengeräusche. Mit Kunststoff-Balkontüren schaffen Sie eine komfortable und energieeffiziente Wohnatmosphäre.

Kunststoff-Balkontüren haben eine lange Lebensdauer. Sie sind beständig
gegen Feuchtigkeit, Schimmel und Rost, verrotten nicht und sind UV-beständig. Durch ihre Langlebigkeit sparen Sie langfristig Geld für Reparaturen und Ersatz. Wenig Wartungsaufwand ist erforderlich, was sie zu einer zuverlässigen langfristigen Investition macht.

Kunststoff-Balkontüren sind äußerst einfach zu reinigen. Mit einem milden Reinigungsmittel und einem weichen Tuch können Schmutz und Staub problemlos entfernt werden. Da Kunststoff von Natur aus flecken- und
verfärbungsbeständig ist, ist kein Streichen oder Lackieren erforderlich. Die einfache Reinigung spart Zeit und Aufwand.

Kunststoff-Balkontüren haben den Vorteil günstiger Anschaffungskosten.
Im Vergleich zu anderen Materialien sind sie kostengünstiger, bieten aber dennoch gute Qualität, Langlebigkeit und Wärmedämmung. Dies macht sie zu einer attraktiven Option für Hausbesitzer mit begrenztem Budget.

DETAILS auf einem Blick


MACO SICHERHEITSBESCHLÄGE - Abhängig von den Sicherheitsanforderungen ist es möglich, die Fenster mit folgenden Beschlägen auszustatten:
VIELE GLASPAKETE erhältlich - schauen Sie das Video, um sich einen besseren Überlick zu verschaffen.
Die bei IGLO 5 mögliche Verglasungsstärke liegt zwischen 22,5 - 41 mm. Hier erreichen wir einen Uw-Wert von 0,94.
Die bei IGLO Energy mögliche Verglasungsstärke liegt zwischen 22,5 - 53 mm. Hier erreichen wir einen Uw-Wert von 0,79.

FENSTERGRIFF - Unsere Balkontüren haben mehrere Griffe zur Auswahl. Hier unterscheiden wir zwischen Standard, mit Knopf oder abschließbar. Je nach Wohnsituation entscheiden sich unsere Kunden unterschiedlich. Abschließbar werden meistens in Kinderzimmern benutzt oder aus Sicherheitsgründen.
Balkontürgetriebe mit Schloss (Dornmass) - Sie möchten Ihre Terrassentür von außen abschließen oder öffnen? Das Dornmass macht es möglich. Sie haben einen Griff und Schloss von innen und außen. Ein Video zur dieser Ausführung finden Sie hier. ACHTUNG! Das Balkontürgetriebe ist nur in Iglo 5 Classic möglich.
Swisspacer Ultimate In der Standardausführung bestehen die Abstandshalter aus verzinktem Stahl. Doch aus optischen oder energetischen Gründen kann es sinnvoll sein Abstandshalter aus Kunststoff zu nehmen (auch warme Kante genannt). Die Kunststoffabstandshalter können in verschiedenen Farben gewählt werden (schwarz, braun, grau).


INNOVATION - Die innovative Lösung V-Perfect, ermöglicht die perfekte Verbindung der Profilecken und gewährleistet eine entschieden bessere Andruckkontrolle und schönere Schweißnähte. Die Rahmennut kann verschmälert werden, somit wirkt das gesamte Fenster qualitativ hochwertiger.
GLASLEISTEN zur Auswahl - wir haben runde und eckige Glasleisten. Diese können auch farblich angepasst werden.


INNOVATION - Die Rahmennut kann verschmalert werden, damit es optisch moderner wirkt.
Wir bieten eine Vielzahl an Farben - wir möchten ihnen mit den beliebtesten Farben die Entscheidung erleichtern. Die Fenster Kunststoffprofile werden standardmäßig in weiß produziert, somit ist die Farbe am günstigsten und wurde zum Bestseller. Anthrazitgrau hat erst im vergangenen Jahr an Zuwachs gewonnen. Das liegt wahrscheinlich an den moderneren Neubauten.
Anthrazitgrau
Weiß
Um weitere Farben zu differenzieren, haben wir die Grautöne separat aufgelistet. Diese sind eher für Neubauten und dienen einem kalten und modernen Look. Hier haben wir noch Unterschiede in der Struktur. Wir bieten normal, glatt oder gebürstet.
Anthrazit Glatt
Anthrazitgrau Ulti Matt
Basaltgrau
Basaltgrau Glatt
Betongrau
Crown Platin
Eisenglimmer Schiefer
Gebürstet Aluminium
Grau
Lichtgrau
Schiefergrau Glatt
Schwarz Ulti-Matt
Quarzgrau
Quarzgrau Glatt
Hier listen wir ihnen die Holzdekore auf für Liebhaber der warmen Atmosphäre. Diese Brauntöne sind eher für Altbauten und geben einen warmen Look. Diese Holzdekore sind zum verwechseln ähnlich mit echtem Holz. Das liegt an ihrer unterschiedlichen Holzstruktur.
Bergkiefer
Braun Maron
Eiche Dunkel
Eiche Hell
Eiche Natur
Golden Oak
Macore
Mahagoni
Nussbaum
Oregon
Schoko Braun
Schwarzbraun
Sheffield Oak Light
Streifen Douglasie
Winchester
Für aufregende Bauprojekte bieten wir bunte Farben an. Diese werden öfters in Ferienhäuser angewendet.
Brillantblau
Creme Weiss
Dunkelgrün
Dunkelrot
Moosgrün
Weiß FX

FENSTERFORMEN - neben dem Profil, der Verglasung und der Farbe gibt es noch die Fensterform, die ihre Hausfassade eigen aussehen lassen kann.
Wir bieten Sprossen in Breite von 8mm, 18mm, 26mm, 45mm an. Die Farbe ist passend zum Fenster. Und wir haben Arten wie Wiener Sprossen oder aufgeklebte Sprossen.


AUFSATZROLLLADEN/VORSATZROLLLADEN - wir bieten ihnen den passenden Rollladen zum Fenster.