Aluminium Hebeschiebetür: ist eine besondere Terassentür. Es ist günstig, langlebig und ein absolut modern.
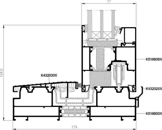
DRUTEX MB77HS HEBESCHIEBETÜR - ist ein Aluminiumprofil mit einer thermisches Trennung. Die Einbautiefe des Rahmens beträgt 174 mm und die des Flügels 77 mm.
JETZT IM SHOP KONFIGURIERENDank spezieller Dichtungssysteme in Form von EPDM-Dichtungen wird ein hohes Maß an Fensterdichtigkeit erreicht. Bei dichten Systemen sorgen wir mit Lüftungsanlagen für den nötigen Luftaustausch im Raum. Dank dieser Lösung kann die Feuchtigkeit im Raum vermieden werden.

Dank der technologischen Parameter der von uns verwendeten Materialien können wir auch die untypischsten Fensterformen auf der Basis von Profilsystemen mit oder ohne thermische Trennung herstellen. Die Auswahl der Fensterbeschläge hängt von der Größe und dem Gewicht des Fensters ab.

Die Fenster von LUXURY FENSTER können in allen Gebäudetypen eingesetzt werden. Sie umfassen zahlreiche Varianten von zu öffnenden und festen Fenstern. Der mehrschichtige Aufbau ermöglicht die Anpassung der Fassade an die Bedürfnisse des Kunden.

Die Fenster von LUXURY FENSTER entsprechen den baurechtlichen Vorschriften, so dass ihre Verwendung völlig sicher ist. Dank der Konstruktion des Flügels und der Beschläge können Sie das Öffnen des Fensters vollständig kontrollieren, und die Benutzung des Fensters ist völlig sicher.

PROFILZYLINDER - Durch den abschließbaren Profilzylinder ist ein sicheres Abschließen von Innen und Betreten von Außen möglich. Standardmäßg wird die Hebeschiebetür nur von Innen geöffnet und geschlossen.


SICHERHEITSBESCHLÄGE von Gretsch Unitas mit folgenden Eigenschaften:
Bei MB-77 HS ist ein einbruchsicheres Glas bis zu einer Sicherheitsstufe von P5A möglich.
Dieses Scheibenpaket ist sicher gegen einfache Werkzeuge wie z. B. Schraubendreher, Zange und Keile.


Genießen Sie die Ruhe Zuhause mit einer Schallschutzverglasung. Unsere ALU HS kann mit einer Schallschutzverglasung hergestellt werden. Hier wird der Schallschutzwert von 40DB erreicht was einer Schallschutzklasse von 4 entspricht. (Schallschutz Zertifikat herunterladen ). Wir empfehlen ihnen die Schallschutzverglasung bei einem Verkehr bei einer Entfernung von 26 Metern zur Strasse und einem stündlichen Verkehr von 50 bis 200 Fahrzeugen.
ORNAMENTVERGLASUNG
Eine Hebeschiebetürscheibe muss nicht immer klar sein. So können Sie Beispielsweise durch unterschiedliche Strukturen oder Beschichtungen mehr an Privatsphäre gewinnen, aber auch gleichzeitig die Räume mit Tageslicht füllen. Folgendes empfehlen wir:
für das Badezimmer
für das Büro
für Altbau
für noch mehr Privatsphäre spiegelnde Gläser
für noch mehr Privatsphäre getönte Gläser
AUSWAHL AN GRIFF/DRÜCKER
Die Griffe und Drücker, zeichnen sich nicht nur durch schönes Design und vielfältigen Farboptionen aus, sondern darüber hinaus auch durch ihre ergonomische Form.
Wir haben folgende Griffkombinationen für Sie:
Auswahl an Farben: Weiss, Braun, Silber, Schwarz, Bronze Hell, Anthrazitgrau, Edelstahl
Wir haben noch viele weitere Ausführungen in jeglicher erdenklichen Farben. Sie finden weitere Informationen in unserem Hebeschiebetürkonfigurator oder unter Zubehör in unserem Onlineshop.
Swisspacer Ultimate In der Standardausführung bestehen die Abstandshalter aus verzinktem Stahl. Doch aus optischen oder energetischen Gründen kann es sinnvoll sein Abstandshalter aus Kunststoff zu nehmen (auch warme Kante genannt). Die Kunststoffabstandshalter können in verschiedenen Farben gewählt werden (schwarz, braun, grau).


Auch bei der Verglasung nutzt Drutex die Hochwertigsten Materialien, so werden Dicken bis zu 61 mm erreicht. Außerdem ist eine Verglasung von 2 bis hin zu 4-Fachverglasung möglich.
Querschnitte - Für die optimale Planung beim Hebeschiebetüreinbau empfehlen wir ihnen einen Blick in die Technischen Zeichnungen zu werfen.


INNOVATION - Die Ecken der Hebeschiebetürrahmen werden standardmäßig gecrimpt. Somit ist eine Nut zu sehen. Sollten Sie dieses vermeiden wollen, dann können wir eine verschweißte Ecke anbieten. Somit haben Sie ein nutlosen Hebeschiebetürrahmen.
9016
7016
9005
8019
6005
7001
3004
9006
9007
nach RAL
9016
7016
9005
8019
6005
7001
3004
9006
9007
nach RAL
Metallic White
Metallic Beige
Metallic Brown
Metallic Red
Rusty Brown
Metallic Grey DB703
Modern Grey
Metallic Ash
Metallic Black
Anodic Olive
Golden Oak
Anodic Silver
Anodic Grey
Anodic Platinium
Nussbaum
Anodic Bronze
Anodic Brown
Winchester
Sprossen verschönern die HS und verleihen Ihr einen klassisches Erscheinungsbild. Ursprünglich stammen sie dabei aus dem Jugendstil, wo sie einst als aufwändiges Gestaltungselement benutzt wurden, um die Glasflächen einzuteilen. Heutzutage kommen aber Fenstersprossen immer noch oft zum Einsatz in den verschiedensten Ausführungen wie unter anderem die glasteilende Sprosse (Kämpfer), die aufgeklebte Sprosse (Wiener Sprosse) sowie die Scheiben-Zwischenraum-Sprosse gehören.
Wir bieten Sprossen in Breite von 8mm, 18mm, 26mm, 45mm an. Die Farbe kann ganz individuell oder passend zur HS gewählt werden.

Eckige Glasleisten - In der Standard Ausführung sind die Glasleisten eckig. Passend zu den eckigen Glasleisten empfehlen wir einen Eckigen Griff. Hier hat die Marke Hoppe passende Produkte.

Abhängig von der Einbausituation müssen manchmal zwei Elemente miteinander gekoppelt werden. Für diese Situation haben wir folgende Lösungen:

VERBREITERUNGEN dienen als Profilerweiterung um bei bestimmten Einbausituationen der Hebeschiebetür optisch oder bautechnisch anzupassen.
